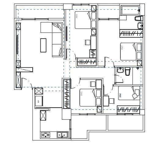
清新 x 典雅宅 竹北 楊公館 空間坪數: 約40坪 空間格局: 四房 房屋型式: 電梯大樓 成員:大人: 2人 + 小孩:2人 主要建材:木作 , 細鋁框拉門 , 系統櫃體 , 廚具 , 烤漆玻璃 原格局配置 / 規劃後配置 楊先生 尋尋覓覓終於找到夢想中有河景的好宅 為了給太太和兒女們更舒適的居住空間 將房子的格局改變了一些 讓空間使用上更適合家人們 除了格局空間以外 在有限的空間 櫥櫃收納規劃也很重要 以下是完工照片照片分享~ 施工花絮分享~ 謝謝楊先生給予我們服務的機會 也恭喜楊先生新居落成 以上案例提供給有需要的朋友們參考喔~ 分享此文: 分享到 X(在新視窗中開啟) X 分享到 Facebook(在新視窗中開啟) Facebook 喜歡 正在載入... 相關 Posted In:設計裝潢