
一、案件基本資料
- 案件類型:老透天改套房
- 樓層配置:
- 1F|公共停機車空間
- 2F|2 套房
- 3F|2 套房
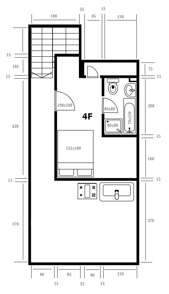
- 4F|1 套房
- 總套房數:5 間
- 使用目的:長期出租/穩定收租
二、整體規劃重點
1. 套房數量控制
- 每層以 2 間套房為原則
- 避免過度切割,降低法規與消防風險
2. 動線與機能
- 一樓保留公共停機車空間,解決租客實際需求
- 套房出入口與公共動線分開,提升居住品質
3. 管線配置
- 衛浴上下對齊,集中糞管系統
- 減少橫向配管,降低日後滲漏與維修風險
三、水電與設備規劃
- 每間套房獨立電錶/分錶
- 冷氣與熱水器皆為獨立迴路
- 熱水採個別熱水器配置,方便維修與管理
四、設計與風格設定
- 整體風格:簡約、耐用、不退流行
- 色系以淺色與木質調為主,提升空間明亮度
- 收納以機能為主,避免過多固定櫃體
五、消防與安全考量
- 每層配置滅火器
- 逃生動線明確,窗戶保留逃生機能




















我們提供的不只是施工,
而是從前期評估就參與整體規劃。
從套房數量與配置的可行性分析,
到水電、排水與管線的整體規劃,
再到施工過程的整合與品質控管,
每一個階段,
都是為了讓這棟房子「好用、好租,也好管理」。
